Coming Soon

The Linear is a straightforward cabin kit designed for short-stay use and small permanent living. Built from a light gauge steel frame with insulated walls and Colorbond cladding, it assembles on site into a solid, finished building that feels permanent and considered. Available in single or double bedroom layouts, it can be certified as a Class 1a dwelling or used for visitor accommodation, depending on your site and approvals.

A modern tiny house with a deck, situated beside a pond on a grassy hillside. Two people sit on the deck, with cows grazing nearby and trees in the background during sunset.

Linear

Single / Double

Compact and efficient. Ideal for solo travellers or overnight stays where the landscape does the heavy lifting.

GET A QUOTE

Linear

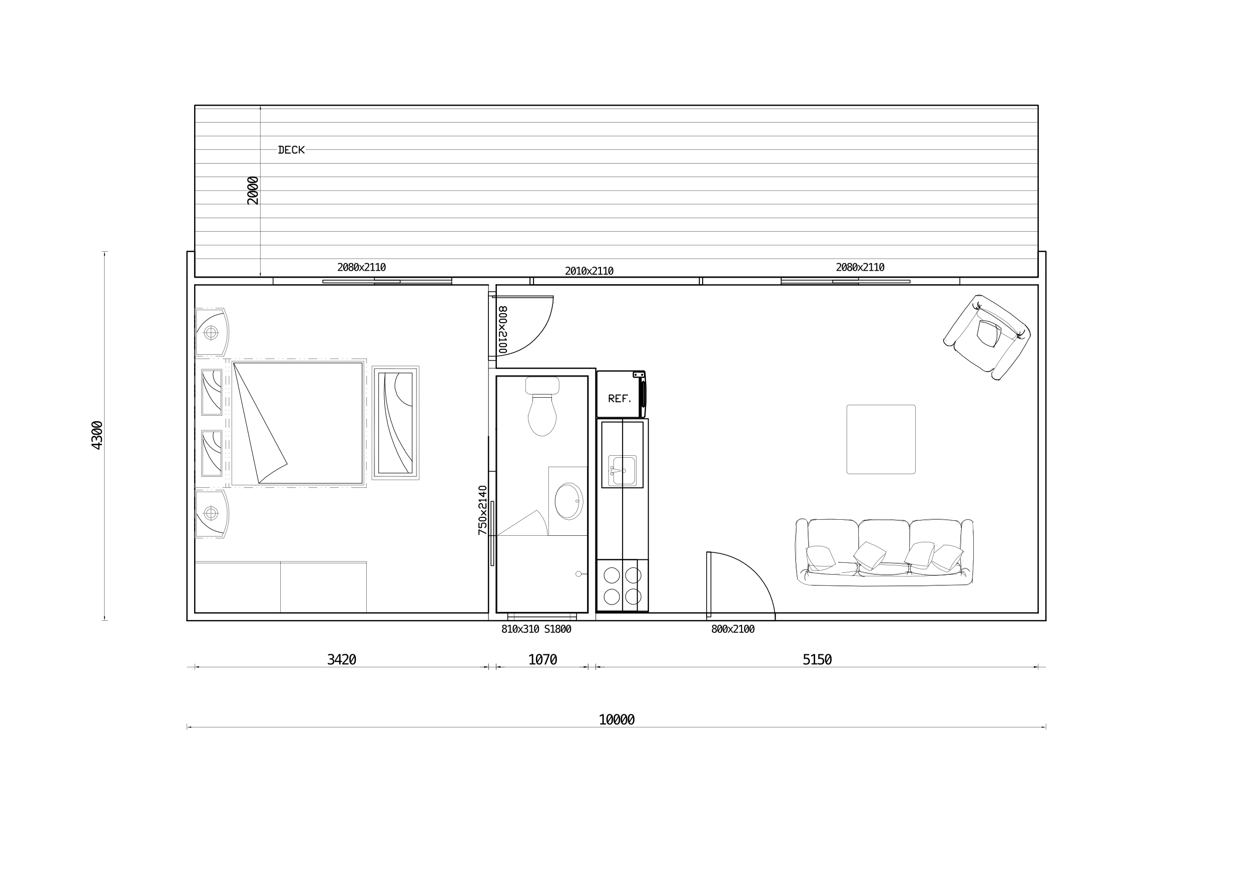
Size: 10m x 4m + deck

Footprint: 40m2 + deck

Ceiling Height: 2.4m Minimum


Stats

1 Bed

1 Bath

1 Kitchen

1 Living



Floor plan of a small house featuring a bedroom, bathroom, living room, kitchen, and a deck outside.

Floor Plan

The 6-metre pod is compact but complete.


The Linear is a simple, well-proportioned cabin kit designed for short-stay and small-footprint living.

It comes in two layouts. A single bedroom model for couples or solo guests. A double bedroom model for families or shared stays. Both follow the same long, clean form shown here, with large openings that connect the interior to the landscape.

The structure is light gauge steel framing with integrated insulation. External walls are finished in Colorbond cladding for durability and low maintenance in Australian conditions. The kit is supplied for on-site assembly and must be completed by licensed builders.

Once delivered, the build typically takes around two weeks to reach a fully finished state, depending on site access and services. The result feels solid, permanent, and familiar to stay in. Not temporary. Not improvised.

Download Plan
Download Brochure

Take the Next Step


Download our Design Price Guide for more information on our designs, inclusions, personalisation options and pricing. 

Or contact us – we’re here to help answer any questions. 

Enquire Now
Download the Brochure
Two construction workers in safety vests walking inside an industrial warehouse, where a black modular building is under construction with metal framing and scaffolding.