Available for project orders

The Homestead Range is our premium expander home offering.
Built for clients who need real accommodation at scale, without committing to a full bespoke build.

These homes arrive compact for transport.
On site, they expand into a full-width dwelling with proper rooms, real ceiling heights, and a layout that feels settled, not temporary.

We offer the Homestead Range by request.

Interior of a large warehouse with numerous prefabricated modular tiny houses, some with wood siding and others with a combination of metal and wood, set on concrete floors under a metal roof with exposed beams.

Homestead Cabins

35m² - 72m²

Permanent comfort. Portable logic.

GET A QUOTE

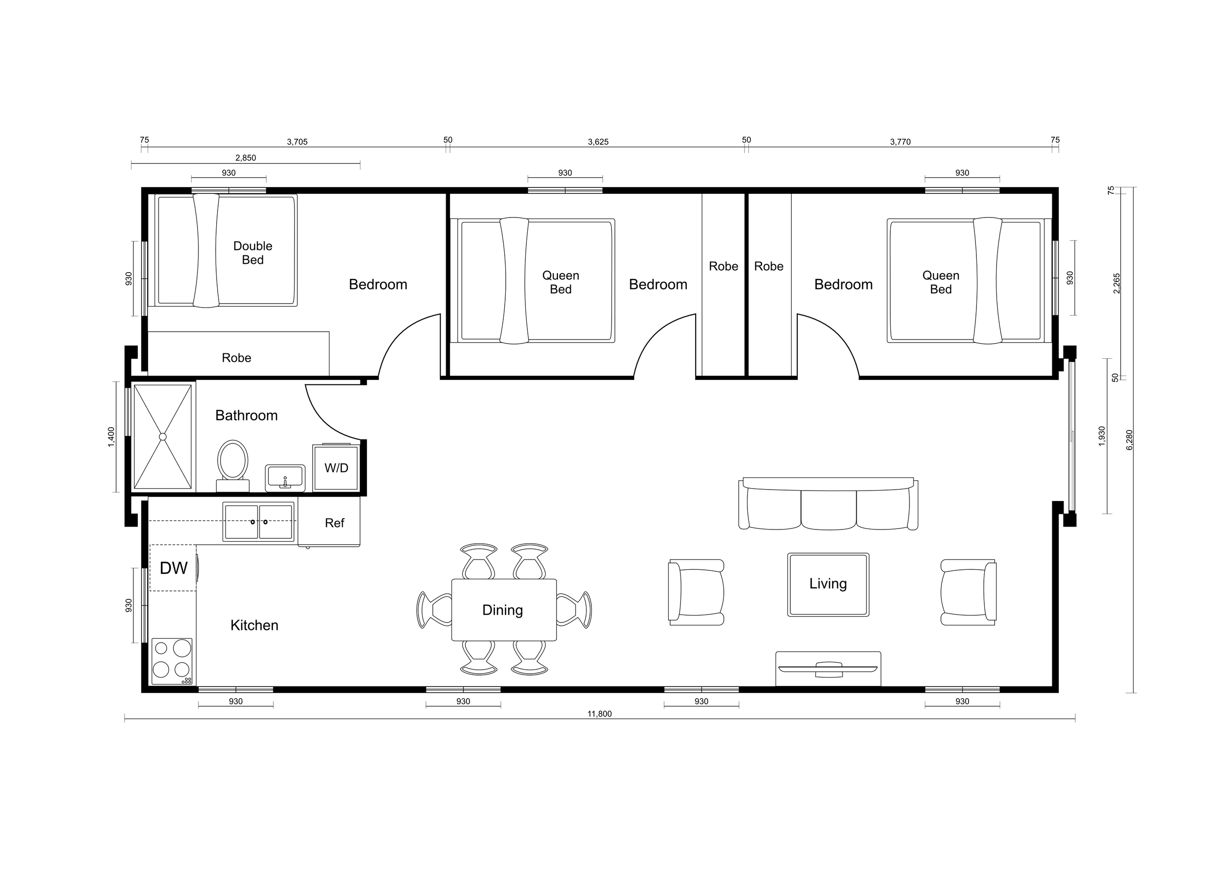
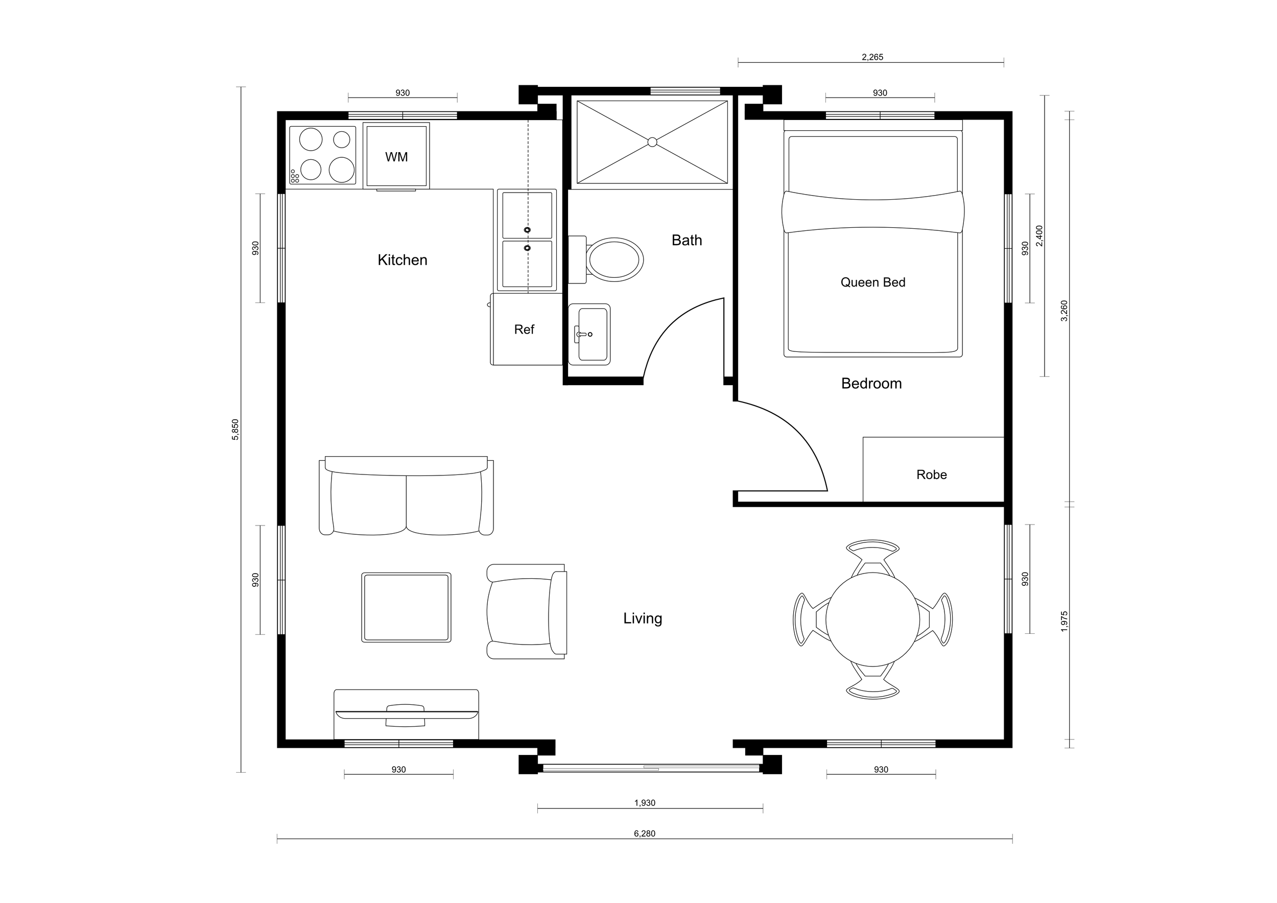
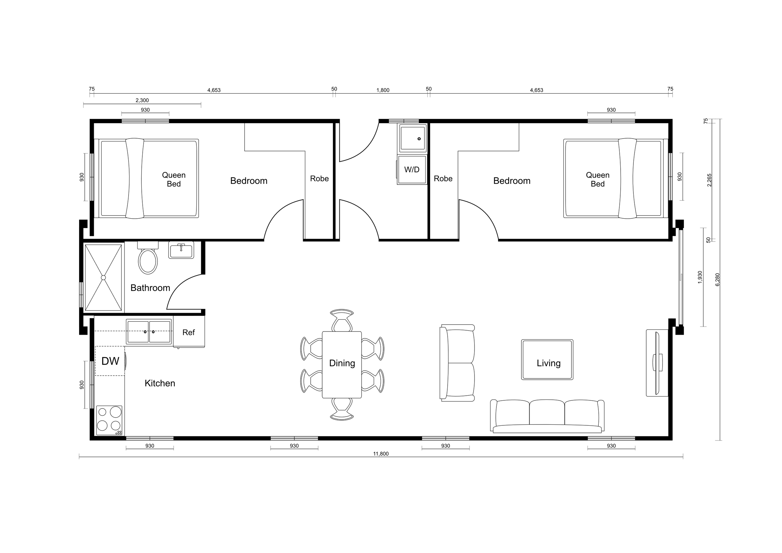
Homestead

Size: 6.3m x 5.8-11.8m

Footprint: 35-72m²

Ceiling Height: 2.4m


Stats

1-3 Bed

1 Bath

1 Kitchen

1 Living



Floor Plan

From truck width to house width.


The range runs from 35 square metres through to 72 square metres.
Single or multi-bedroom.
Suited to couples, families, staff, or longer-stay guests.

An expander home works by folding inward for transport.
Walls, roof sections, and floors are engineered to move once, then lock into place.
Once expanded, it behaves like a conventional light-gauge steel home.

The Homestead Range suits projects where comfort matters.
Regional accommodation.
Tourism villages.
Workforce housing.
Landowners building staged accommodation over time.

These are homes people can live in, not just sleep in.

Download Plan
Download Brochure

Take the Next Step


Download our Design Price Guide for more information on our designs, inclusions, personalisation options and pricing. 

Or contact us – we’re here to help answer any questions. 

Enquire Now
Download the Brochure
Two construction workers wearing orange safety vests walking inside an industrial building under construction, with a partially built black modular structure and metal framework.